$900,000
1,164
SQ FT
$773
SQ/FT
31355 Hugh Way
@ Corrine St - 3400 - Hayward, Hayward
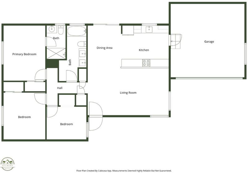
- 3 Bed
- 2 Bath
- 2 Park
- 1,164 sqft
- HAYWARD
-
-
Sun Mar 22, 2:00 pm - 4:00 pm
Welcome to this charming single-family home nestled in the desirable Fairway neighborhood. It offers 1,164 square feet of updated living space, perfect for anyone seeking both functionality and style. Step inside to a warm and inviting interior, featuring beautiful flooring throughout. The spacious layout includes three well-appointed bedrooms and two full bathrooms, providing plenty of room for relaxation and daily living. Central heating and air conditioning ensure comfort year-round, making this home as practical as it is inviting. The exterior of the property is equally impressive, boasting both a beautifully landscaped front yard and a private backyard. Whether hosting gatherings or enjoying quiet outdoor moments, the outdoor spaces are sure to delight. This home combines convenient access to everything Hayward has to offer, shopping, dining, parks, and more, with the added benefit of being in the desirable New Haven School District. Bonus: from the property, you can access the trails that lead to Garin Park, where you can explore hiking trails, picnic spots, and stunning hillside views, a perfect escape for outdoor enthusiasts! This is an excellent opportunity to own a comfortable and thoughtfully crafted home in a sought-after area. Open House 3/21: 1-3pm, 3/22: 2-4pm
- Days on Market
- 2 days
- Current Status
- Active
- Original Price
- $900,000
- List Price
- $900,000
- On Market Date
- Mar 20, 2026
- Property Type
- Single Family Home
- Area
- 3400 - Hayward
- Zip Code
- 94544
- MLS ID
- ML82038533
- APN
- 078G-2939-004
- Year Built
- 1955
- Stories in Building
- 1
- Possession
- Unavailable
- Data Source
- MLSL
- Origin MLS System
- MLSListings, Inc.
Hillview Crest Elementary School
Public K-5 Elementary
Students: 513 Distance: 0.3mi
Alternative Learning Academy At Conley-Caraballo High
Public 9-12 Alternative
Students: 10 Distance: 0.4mi
Core Learning Academy At Conley-Caraballo High
Public 9-12 Continuation
Students: 127 Distance: 0.4mi
Treeview Elementary
Public K-6 Elementary
Students: 461 Distance: 0.4mi
Mission Hills Middle School
Private PK-8 Preschool Early Childhood Center, Elementary, Middle, Coed
Students: 350 Distance: 0.8mi
Northstar School
Private K-8
Students: 126 Distance: 0.9mi
- Bed
- 3
- Bath
- 2
- Parking
- 2
- Attached Garage, On Street
- SQ FT
- 1,164
- SQ FT Source
- Unavailable
- Lot SQ FT
- 5,000.0
- Lot Acres
- 0.114784 Acres
- Cooling
- Central AC
- Dining Room
- Dining Area
- Disclosures
- NHDS Report
- Family Room
- Kitchen / Family Room Combo
- Foundation
- Concrete Perimeter, Crawl Space
- Fire Place
- Wood Burning
- Heating
- Central Forced Air
- Fee
- Unavailable
MLS and other Information regarding properties for sale as shown in Theo have been obtained from various sources such as sellers, public records, agents and other third parties. This information may relate to the condition of the property, permitted or unpermitted uses, zoning, square footage, lot size/acreage or other matters affecting value or desirability. Unless otherwise indicated in writing, neither brokers, agents nor Theo have verified, or will verify, such information. If any such information is important to buyer in determining whether to buy, the price to pay or intended use of the property, buyer is urged to conduct their own investigation with qualified professionals, satisfy themselves with respect to that information, and to rely solely on the results of that investigation.
School data provided by GreatSchools. School service boundaries are intended to be used as reference only. To verify enrollment eligibility for a property, contact the school directly.





























