$548,900
1,740
SQ FT
$315
SQ/FT
201 Yarrow Court
@ Tamarisk Circle - Suisun 1, Suisun City
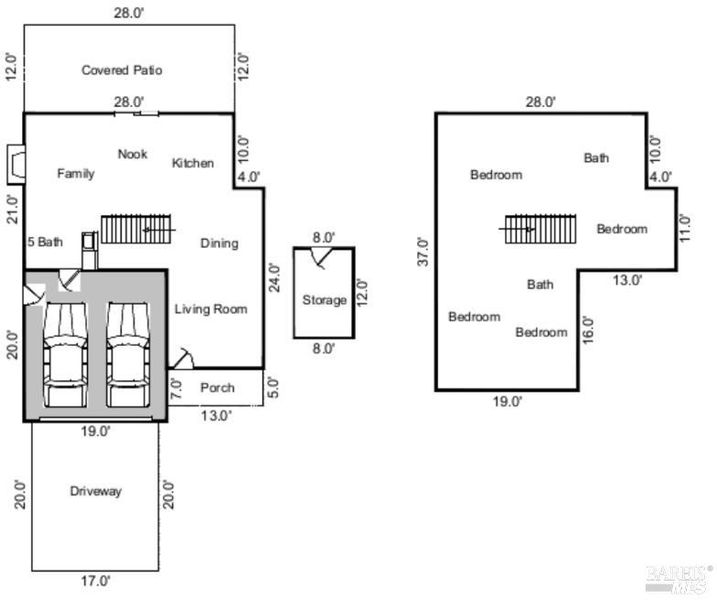
- 4 Bed
- 3 (2/1) Bath
- 2 Park
- 1,740 sqft
- Suisun City
-
Beautiful home in a court recently updated, New kitchen countertops, sink, fixtures, appliances, updated bathrooms bathrooms, interior two tone paint, flooring, new blinds, water softener, new hot water heater, exterior paint. Great floor plan, family room, breakfast nook, living room & dining combo ready to move in. Private backyard retreat area with several fruit trees. Clear Termite Report.
- Days on Market
- 2 days
- Current Status
- Active
- Original Price
- $548,900
- List Price
- $548,900
- On Market Date
- Mar 20, 2026
- Property Type
- Single Family Residence
- Area
- Suisun 1
- Zip Code
- 94585
- MLS ID
- 326022190
- APN
- 0173-762-130
- Year Built
- 1993
- Stories in Building
- Unavailable
- Possession
- Close Of Escrow
- Data Source
- BAREIS
- Origin MLS System
Suisun Elementary School
Public K-5 Elementary
Students: 517 Distance: 0.6mi
Crescent Elementary School
Public K-5 Elementary, Yr Round
Students: 607 Distance: 0.6mi
Crystal Middle School
Public 6-8 Middle
Students: 831 Distance: 0.7mi
Holy Spirit Elementary School
Private K-8 Elementary, Religious, Coed
Students: 326 Distance: 0.8mi
Armijo High School
Public 9-12 Secondary
Students: 2108 Distance: 0.9mi
Anna Kyle Elementary School
Public K-5 Elementary
Students: 722 Distance: 0.9mi
- Bed
- 4
- Bath
- 3 (2/1)
- Double Sinks, Quartz, Tub w/Shower Over, Walk-In Closet, Window
- Parking
- 2
- Side-by-Side
- SQ FT
- 1,740
- SQ FT Source
- Assessor Auto-Fill
- Lot SQ FT
- 4,761.0
- Lot Acres
- 0.1093 Acres
- Kitchen
- Breakfast Area, Pantry Cabinet, Quartz Counter
- Cooling
- Central
- Living Room
- Cathedral/Vaulted
- Flooring
- Carpet, Laminate, Tile
- Fire Place
- Family Room
- Heating
- Central, Gas
- Laundry
- Ground Floor, Hookups Only, Laundry Closet
- Upper Level
- Bedroom(s), Full Bath(s)
- Main Level
- Dining Room, Family Room, Garage, Kitchen, Living Room
- Possession
- Close Of Escrow
- Basement
- None
- Architectural Style
- Traditional
- Fee
- $0
MLS and other Information regarding properties for sale as shown in Theo have been obtained from various sources such as sellers, public records, agents and other third parties. This information may relate to the condition of the property, permitted or unpermitted uses, zoning, square footage, lot size/acreage or other matters affecting value or desirability. Unless otherwise indicated in writing, neither brokers, agents nor Theo have verified, or will verify, such information. If any such information is important to buyer in determining whether to buy, the price to pay or intended use of the property, buyer is urged to conduct their own investigation with qualified professionals, satisfy themselves with respect to that information, and to rely solely on the results of that investigation.
School data provided by GreatSchools. School service boundaries are intended to be used as reference only. To verify enrollment eligibility for a property, contact the school directly.










































